Centro Deportivo Truper
Obras de Alto Impacto
El proyecto abarca la construcción de diversas instalaciones deportivas y de apoyo, con trabajos de movimiento de tierras, paisajismo y la creación de espacios para deportes como frontón, basquetbol, futbol y voleibol.
/ sobre el proyecto
  • Obra arquitectónica
  • Acabados en concreto aparente pigmentado
  • Losas voladas a más de 100 metros
  • Construcción en desnivel
  • Talleres y salones subterráneos
  • Múltiples canchas deportivas
    / sobre el proyecto
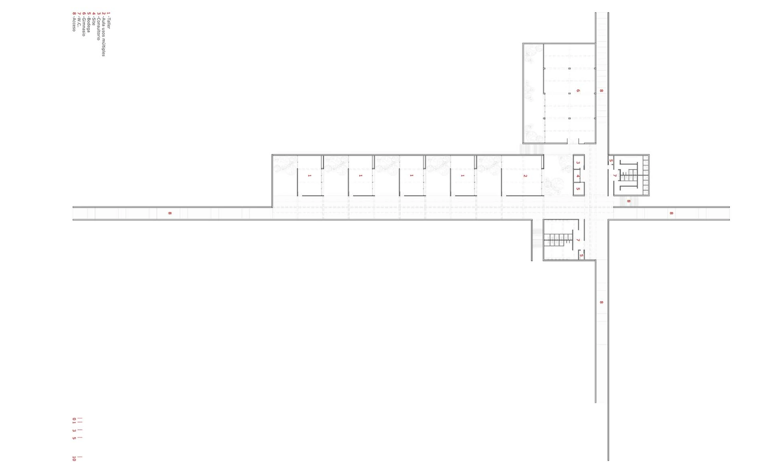
    Planos arquitectónicos
    Además, incluye la construcción de gimnasios, tanto al aire libre como techados, áreas para actividades como yoga y pilates, y elementos de infraestructura como casetas de vigilancia, tiendas, kioscos y sistemas de instalación eléctrica, sanitaria y pluvial. Todo ello con una planificación cuidadosa de iluminación y espacios que favorezcan la funcionalidad y la experiencia del usuario.
    Planos arquitectónicos
    Además, incluye la construcción de gimnasios, tanto al aire libre como techados, áreas para actividades como yoga y pilates, y elementos de infraestructura como casetas de vigilancia, tiendas, kioscos y sistemas de instalación eléctrica, sanitaria y pluvial. Todo ello con una planificación cuidadosa de iluminación y espacios que favorezcan la funcionalidad y la experiencia del usuario.
    /   Proyectos relacionados
    Deportivo Coppel
    Siguiente
    0
    %